Pick a Freedom Express LTZ Floorplan — Get Specs & Tow Ratings
Designed for adventurous families and outdoor enthusiasts, the Freedom Express LTZ offers a seamless blend of comfort and durability in both travel trailers and toy haulers. With 17 distinct models available, this line caters to those seeking memorable road trips and thrilling escapades without sacrificing the comforts of home.
Freedom Express LTZ Toy Hauler Floorplans
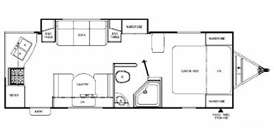
Freedom Express LTZ Travel Trailer Floorplans

Leave the Noise Behind.
Reconnect Outdoors.
Our mission is to help people make well-informed RV buying decisions, so they can leave the noise and screens behind, reconnect with family, and create unforgettable memories in the great outdoors.
Free tools. No sales pressure. Just better decisions.