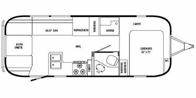
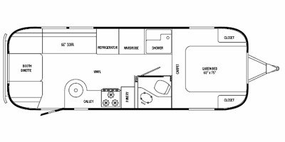
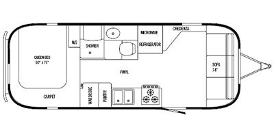
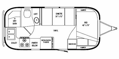
Explore Safari Models — Floorplans, Specs & Tow Ratings
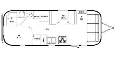
For the adventurous couple seeking the perfect weekend escape, Safari’s travel trailers deliver a blend of style and functionality. Launched briefly in 2008 under the Airstream umbrella, these eight models capture the essence of exploration, offering a cozy retreat after a day of outdoor adventures. Experience the thrill of the open road with Safari.

Leave the Noise Behind.
Reconnect Outdoors.
Our mission is to help people make well-informed RV buying decisions, so they can leave the noise and screens behind, reconnect with family, and create unforgettable memories in the great outdoors.
Free tools. No sales pressure. Just better decisions.